菏泽一小区实建与规划不符,为保障回迁安置,予以规划认可!
发布时间:2021-09-10 09:59:10

9月9日

菏泽市自然资源和规划局发布公示

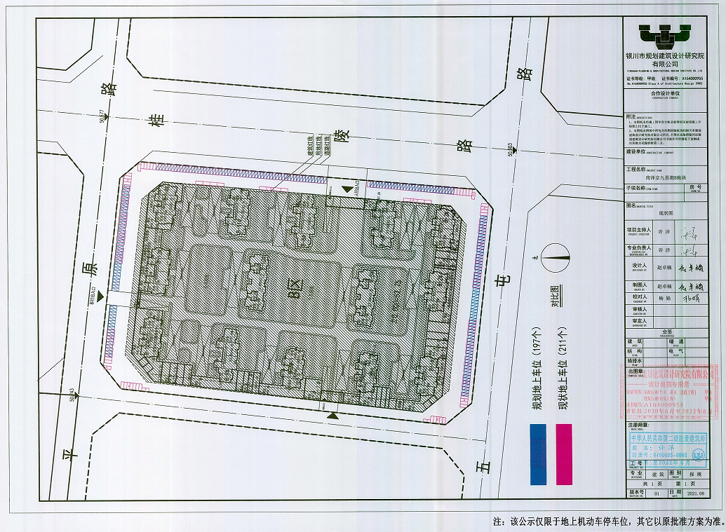
在对京九星港B区进行规划核实中发现如下问题:

↓↓

1、地下车库证载面积32436平方米

实测面积34849.64平方米

超建2413.64平方米

2、B12#楼规划审批为地下一层储藏室

实建为地下二层储藏室

3、地上停车位与规划审批方案不符

详细内容如下:

  为扩大透明度,保障广大业主的合法权益,现将以上内容进行现场公示,同时在菏泽市自然资源和规划局网站公示(网址:htp:/ygh,heze.gov.cn/)。公示期为7个工作日。

  公示期内,如有意见和建议,可向菏泽市自然资源和规划局提出;如无异议,公示期满后,菏泽市自然资源和规划局 将根据建设方申请按现状予以规划核实认可。

此外

菏泽国色天香小区发布回迁通知

北区B2号楼已具备回迁条件

可以办理回迁手续

详细内容如下:

回 迁 通 知

  国色天香小区北区B2号楼已具备回迁条件,请回迁业主本人携带身份证、回迁

  协议等原件于即日起至2021年9月15日到北区5号楼410房间办理回迁手续。

  菏泽市牡丹区2011-09号地块旧城区改建项目指挥部

  菏泽市新家园房地产开发有限公司

  2021年9月7日

主办单位:菏泽市精神文明建设办公室       承办单位:大众网菏泽

ICP备案编号:鲁ICP备2022016126号-2